.jpeg)
The MarQ
マーク
マーク
空港と中心地の間に位置する「The MarQ」塀に囲まれており、ゲートを入るとラグジュアリーな雰囲気が広がっています。A、Bの2つのタワーがあり、最上階のホーチミン全体を見渡すことができるプールでつながっています。通常コンパクトさも感じる1ベッドルームですが、スタディルームのようなスペースが確保されており、特別感がございます。また、2ベッドルーム以上には、洗い場のあるどこか品のあるバスタブが設置。全体が質の高い印象なのですが、ファミリーフレンドリーで最上階にあるキッズルームは大きな滑り台と、ボールプールがございます。1区に位置しながらも、スタディルーム、パーティールーム、ジム、サウナ、BBQスペースと、共有設備のご準備があり、全てが無料設備。ワンランク上の生活をご希望の方には是非一度ご覧いただきたい物件です。
基本情報
竣工時期
2021年
総戸数
515
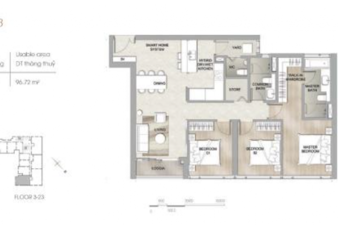
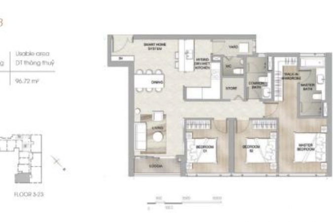
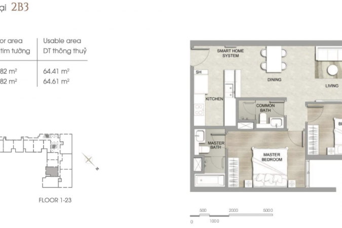
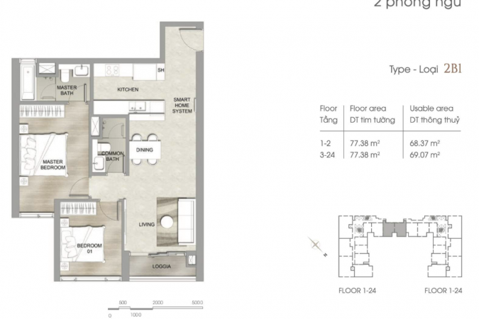
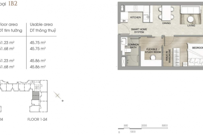
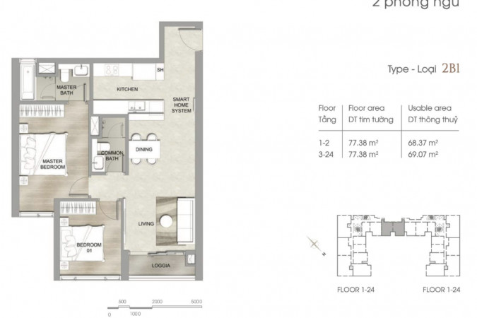
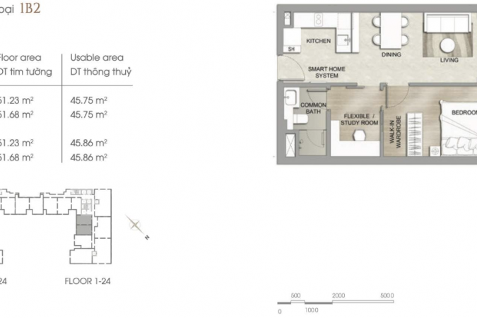
間取り
1~4LDK
賃料相場
1000USD~
ペット
ペット不可
セキュリティ
警備員、カード認証
レタントンまでの距離
車で5分程
住所
29B Nguyen Dinh Chieu, Da Kao Ward, District 1
屋外施設
プール
無料プール有り
ジム
無料ジム有り
スーパー
無し
コンビニ
無し
銀行(ATM)
無し
飲食店
無し
テニスコート
無し
BBQスペース
有り
ドッグラン
無し
屋内施設
キッチンシステム
IHヒーター式
オーブン
お部屋による
バスタブ
お部屋による
バルコニー
有り
子供用施設
子供用プール
有り
屋外遊戯場
無し
屋内遊戯場
有り
日本人学校バス停留所
無し
このコンドミニアムの物件一覧
- 1
- 2