.jpg)
Masteri Thao Dien
マステリ タオディエン
マステリ タオディエン
2区の中でも人気の欧米エリア、タオディエンに近く、利便性が1番良い「マステリ・タオディエン」。5つのタワーからなり敷地内にはVincom Megamall、ミニストップがあり買い物にも困りません。室内はコンパクトですがコストパフォーマンスが良く、単身者やカップルにおすすめです。ジムやプールはもちろん、予約制のBBQスペース、テニスコートやバスケットコートもあります。キッズルームも完備され近隣には幼稚園や日本人学校のスクールバスの停留所があり最近ではファミリー層にも注目が集まっています。2023年には駅も完成予定です。
基本情報
竣工時期
2016年
総戸数
3021
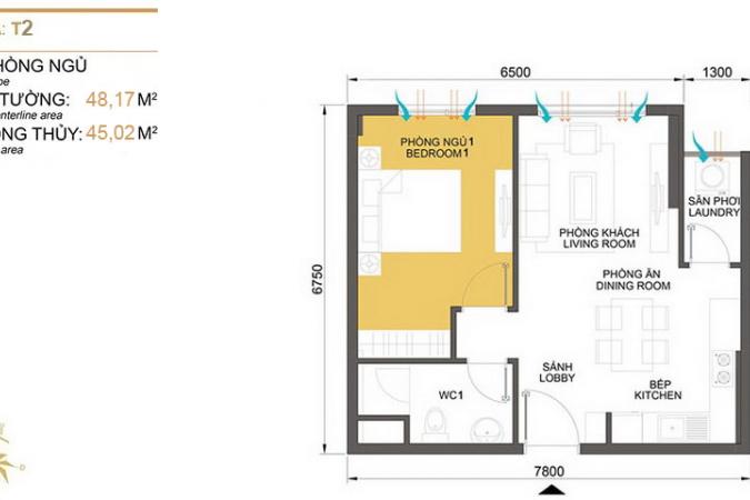
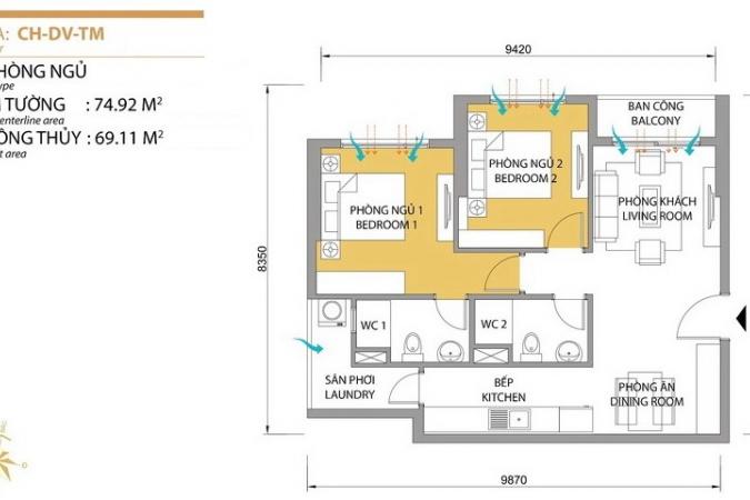
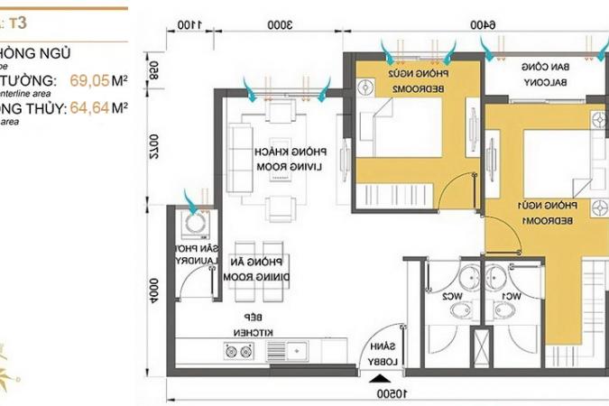
間取り
1LDK~
賃料相場
1LDK: 600USD~, 2LDK: 750USD~
ペット
ペットOK
セキュリティ
警備員
レタントンまでの距離
車で15分程
住所
159 Ha Noi Highway, Ward Thao Dien, District 2
屋外施設
プール
無料
ジム
無料
スーパー
Vincomメガモール
コンビニ
有り
銀行(ATM)
有り
飲食店
有り
テニスコート
有り
BBQスペース
有り
ドッグラン
有り
屋内施設
キッチンシステム
お部屋により異なる
オーブン
お部屋により異なる
バスタブ
無し
バルコニー
お部屋により異なる
子供用施設
子供用プール
有り
屋外遊戯場
有り
屋内遊戯場
有り
日本人学校バス停留所
有り
このコンドミニアムの物件一覧