.jpg)
Gateway Thao Dien
Rising above the skyline of District 2 and offering stunning river and city views, Gateway Thao Dien - comprising of luxury apartments, serviced residences, integrated facilities, boutique retail space, and an F&B courtyard with international standard restaurants and cafes-is the most sought after new address in Thao Dien.
Basic information
Business proprietor
2018
Total units
439
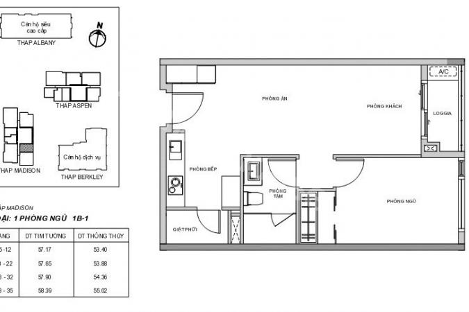
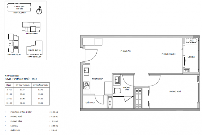
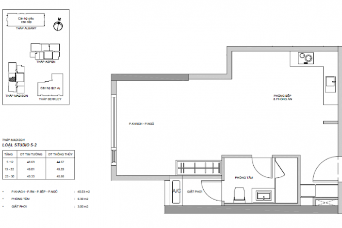
Floor plan
1-3 bedrooms
Avarage rental price
980USD~
Pet
Allowed
Security
24/24, security card
To CBD
15 mins by car
Address
Hanoi Highway, Thao Dien Ward, District 2, Ho Chi Minh city
Outdoor Facilities
Pool
Free
Gym
Free
Supermarket
Convenience store
ATM
Restaurant
Tennis court
BBQ space
Dog run
Indoor Facilities
Kitchen system
Oven
Bathtub
Balcony
Children's Facilities
Children pool
Outdoor playground
Indoor playground
Japanese school bus
Properties in this Condo