Vinhomes Golden River

Vinhomes Golden River is the complex of deluxe residential zone developed Vingroup, convenient location in the center of District 1 (HCMC downtown), 2 sides face to Saigon River:

- Land area: 25.29 hectares

- The construction density of 18.6%

- “Residential Complex Premium”: Apartment – Villa – Office

- Total building: Apartment buildings, Office & Hotel buildings, 60 Floors building

+ The Front: 3 apartment buildings

+ The Luxury: 6 apartment buildings

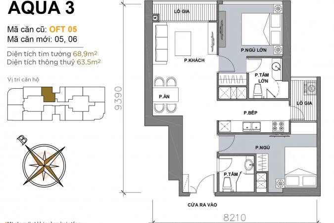
+ The Aqua: 4 apartment buildings

+ The Victoria: 54 villas 225 – 475sqm

Vinhomes Golden River with prominent advantages surrounded by Saigon River shall be formed a modern urban area for residents. The architecture of the Vinhomes Golden River was applied modern standards: high-rise design with low construction density, lower toward the river. Ensure every apartment has a wide vision and spacious living space.

Basic information
Business proprietor
2017
Total units
~3000 apartments + villas
Floor plan
1 Bedroom~
Avarage rental price
1200 USD~
Pet
Not allowed
Security
24/24, security card
To CBD
Walking
Address
2 Ton Duc Thang Street, Ben Nghe Ward, Dist.1
Outdoor Facilities
Pool
Free
Gym
Free
Supermarket
None
Convenience store
Available
ATM
Available
Restaurant
None
Tennis court
Available
BBQ space
None
Dog run
None
Indoor Facilities
Kitchen system
IH
Oven
Available
Bathtub
Depend on apartments
Balcony
Available
Children's Facilities
Children pool
Available
Outdoor playground
Available
Indoor playground
None
Japanese school bus
None
Properties in this Condo
Condo list
Next
back to top