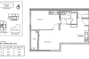
32833Gateway Thao Dien with glass wall 1 bedroom

It is rare for any Gateway Thao Dien apartment to have a glass wall around the bedroom and a white curtain like this apartment. Living space becomes more spacious and airy and not constrained by old brick walls. Everything in the apartment is as fresh as no one has used it yet. Please call us about this apartment.

Contact this property
BOOKMARK
PRICE1200USD
Deposit   × 2

Inclusive

  • VAT
  • Management Fee
  • Internet
  • Electricity
  • Water
  • Room Cleaning
  • Pool Entrance
  • Gym Entrance
  • Laundry Service
City
Ho Chi Minh City
Area
District 2
Type
Condo
Size
48m²
Beds
1 Bedroom
Baths
1 Bathroom
Time to CBD
15min. by car to CBD
Furniture
Fully Furnished
Total Units
439
Category
--

Facilities

  • Pool
  • Private Pool
  • Shared Pool
  • Gym
  • Kitchen
  • Bathtub
  • Washer in unit
  • Balcony
  • Elevator
  • Compound
  • Pet-Friendly

Surroundings

  • Front Desk
  • Security Guard
  • Generator
  • Sunny
  • No Curfew
  • Near Market
Contact this property
BOOKMARK

Other properties in this apartment

Recently Viewed Properties

Similar Properties

back to top