32585新築高級コンドミニアムの1LDK

2区に新しく誕生した高級コンドミニアムの1ベッドルームのお部屋になります。某有名サッカー選手が購入したとの噂もあり、人気がでるのではないかと予想されている物件です。プールジム完備で近隣にショッピングモール等も多いので便利な場所になります。2区でコンドミニアムお探しならベトナムハウスにお任せくださいませ。

この物件を問い合わせる
お気に入りに追加する
賃料800USD
保証金   × 2

賃料に含まれるもの

  • VAT(税金)
  • 管理費
  • インターネット
  • 電気代
  • 水道代
  • 掃除サービス
  • プール利用料
  • ジム利用料
  • 洗濯サービス
都市名
ホーチミン市
エリア
2区
物件タイプ
コンドミニアム
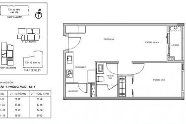
面積
54m²
寝室数
1ベッドルーム
浴室数
1バスルーム
中心街までの距離
中心街まで車で15分程
家具の有無
家具有り
総戸数
439
コンドミニアム
特集
--

特別な条件

  • プール
  • プライベートプール
  • 共用プール
  • ジム
  • キッチン
  • バスタブ
  • お部屋に洗濯機
  • バルコニー
  • エレベーター
  • コンパウンド
  • ペットOK

環境など

  • 有人受付
  • 警備員常駐
  • 発電機
  • 陽当たり良好
  • 門限無し
  • 買物便利
この物件を問い合わせる
お気に入りに追加する

同じアパート内の他の部屋

閲覧履歴

類似物件

back to top