32677超シンプル内装でお安め1LDK

高級コンドミニアム「ゲートウェイ」の1ベッドルームのお部屋になります。物件グレード自体は非常に高いのですが、内装が見劣りしてしまうかもしれません。ただ価格はお手頃なのでもし気になられた方がいらっしゃいましたらご連絡頂ければと存じます。共有スペース(プールやジム)はかなり素敵ですよ!

この物件を問い合わせる
お気に入りに追加する
賃料900USD
保証金   × 2

賃料に含まれるもの

  • VAT(税金)
  • 管理費
  • インターネット
  • 電気代
  • 水道代
  • 掃除サービス
  • プール利用料
  • ジム利用料
  • 洗濯サービス
都市名
ホーチミン市
エリア
2区
物件タイプ
コンドミニアム
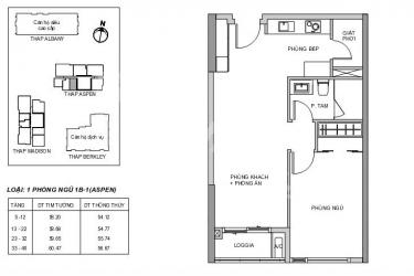
面積
54m²
寝室数
1ベッドルーム
浴室数
1バスルーム
中心街までの距離
中心街まで車で15分程
家具の有無
家具有り
総戸数
439
コンドミニアム
特集
--

特別な条件

  • プール
  • プライベートプール
  • 共用プール
  • ジム
  • キッチン
  • バスタブ
  • お部屋に洗濯機
  • バルコニー
  • エレベーター
  • コンパウンド
  • ペットOK

環境など

  • 有人受付
  • 警備員常駐
  • 発電機
  • 陽当たり良好
  • 門限無し
  • 買物便利
この物件を問い合わせる
お気に入りに追加する

同じアパート内の他の部屋

閲覧履歴

類似物件

back to top