32618Nhiều khách hàng không thể không thuê căn hộ tuyệt vời này

Căn hộ đáng yêu này đã có sự thay đổi mới mẻ, từ thiết kế mở, bếp tuyệt đẹp, phòng tắm đẹp với bồn tắm và nhà vệ sinh riêng biệt, khu vực sinh hoạt lớn, hai phòng ngủ lớn với tủ quần áo có sẵn. Với tầm nhìn ra dòng sông bên ngoài ban công xinh đẹp, bạn không thể cưỡng lại việc thuê nó. Liên hệ với chúng tôi để biết thêm thông tin.

 

 

 

VIETNAM HOUSE - Chuyên cho thuê căn hộ, căn hộ dịch vụ, nhà phố, villa và văn phòng tại Tp.HCM -

 

Liên hệ thuê căn hộ này
Thêm vào mục ưa thích
Giá thuê1450USD
Tiền cọc   × 2

Bao gồm

  • VAT
  • Phí quản lý
  • Phí Internet
  • Phí điện
  • Phí nước
  • Phí dọn vệ sinh
  • Phí vào hồ bơi
  • Phí vào phòng tập
  • Phí giặt
Thành phố
Hồ Chí Minh
Khu Vực
Quận 2
Hình thức
Căn hộ
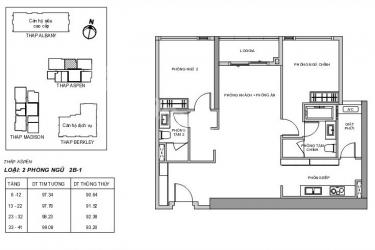
Diện tích
91m²
Phòng ngủ
2 phòng
Phòng tắm
2 phòng tắm
Thời gian tới quận 1
Khoảng 15 phút
Vật dụng
Đầy đủ
Tổng số căn
439
Tên căn hộ
Danh mục
--

Cơ sở vật chất

  • Hồ bơi
  • Hồ bơi riêng
  • Hồ bơi chung
  • Phòng tập thể dục
  • Bếp
  • Bồn tắm
  • Máy giặt
  • Ban công
  • Thang máy
  • Compound
  • Pet OK

Môi trường xung quanh

  • Bàn tiếp tân
  • Bảo vệ
  • Máy phát điện
  • Nhiều ánh sáng
  • Không giờ giới nghiêm
  • Mua hàng tiện lợi
Liên hệ thuê căn hộ này
Thêm vào mục ưa thích

Các căn hộ cho thuê khác quanh đây

Các BDS vừa mới xem

BDS tương tự

back to top