32648Căn hộ Gateway thu hút phần lớn sự quan tâm của bạn

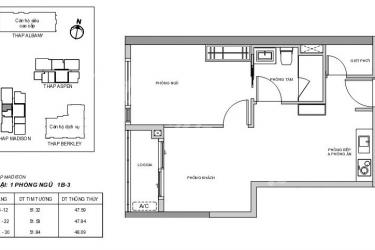
Thuận tiện và lối sống đi đôi với căn hộ 1 phòng ngủ được trình bày tuyệt vời này ngay tại Gateway Thảo Điền. Bao gồm một phòng khách và nhà bếp mở rộng rãi đầy nắng với nội thất nấu ăn bằng thép không gỉ và nhiều chỗ chứa đồ rộng rãi, phòng ngủ với tủ đựng đồ, phòng tắm và máy giặt. Liên lạc với chúng tôi để biết thêm thông tin.

Liên hệ thuê căn hộ này
Thêm vào mục ưa thích
Giá thuê900USD
Tiền cọc   × 2

Bao gồm

  • VAT
  • Phí quản lý
  • Phí Internet
  • Phí điện
  • Phí nước
  • Phí dọn vệ sinh
  • Phí vào hồ bơi
  • Phí vào phòng tập
  • Phí giặt
Thành phố
Hồ Chí Minh
Khu Vực
Quận 2
Hình thức
Căn hộ
Diện tích
54m²
Phòng ngủ
1 phòng
Phòng tắm
1 phòng tắm
Thời gian tới quận 1
Khoảng 15 phút
Vật dụng
Đầy đủ
Tổng số căn
439
Tên căn hộ
Danh mục
--

Cơ sở vật chất

  • Hồ bơi
  • Hồ bơi riêng
  • Hồ bơi chung
  • Phòng tập thể dục
  • Bếp
  • Bồn tắm
  • Máy giặt
  • Ban công
  • Thang máy
  • Compound
  • Pet OK

Môi trường xung quanh

  • Bàn tiếp tân
  • Bảo vệ
  • Máy phát điện
  • Nhiều ánh sáng
  • Không giờ giới nghiêm
  • Mua hàng tiện lợi
Liên hệ thuê căn hộ này
Thêm vào mục ưa thích

Các căn hộ cho thuê khác quanh đây

Các BDS vừa mới xem

BDS tương tự

back to top