32673Được chào đón bởi phòng khách rộng rãi ở Gateway Thảo Điền

Căn hộ gọn gàng và ngăn nắp này sẽ lý tưởng cho các cặp vợ chồng hoặc một gia đình! Vị trí thuận tiện trong phạm vi gần các trường học, cửa hàng và giao thông công cộng, căn hộ có ba phòng ngủ, ban công rộng, nhiều không gian đựng đồ. Khi vào nhà, bạn được chào đón với phòng khách có kích thước thoải mái và cả khu vực bếp / ăn. Nhà bếp đầy đủ tiện nghi tự hào với không gian tủ rộng rãi, nấu ăn bằng điện. Liên lạc với chúng tôi để biết thêm thông tin.

Liên hệ thuê căn hộ này
Thêm vào mục ưa thích
Giá thuê2500USD
Tiền cọc   × 2

Bao gồm

  • VAT
  • Phí quản lý
  • Phí Internet
  • Phí điện
  • Phí nước
  • Phí dọn vệ sinh
  • Phí vào hồ bơi
  • Phí vào phòng tập
  • Phí giặt
Thành phố
Hồ Chí Minh
Khu Vực
Quận 2
Hình thức
Căn hộ
Diện tích
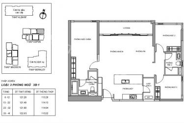
122m²
Phòng ngủ
3 phòng
Phòng tắm
2 phòng tắm
Thời gian tới quận 1
Khoảng 15 phút
Vật dụng
Đầy đủ
Tổng số căn
439
Tên căn hộ
Danh mục
--

Cơ sở vật chất

  • Hồ bơi
  • Hồ bơi riêng
  • Hồ bơi chung
  • Phòng tập thể dục
  • Bếp
  • Bồn tắm
  • Máy giặt
  • Ban công
  • Thang máy
  • Compound
  • Pet OK

Môi trường xung quanh

  • Bàn tiếp tân
  • Bảo vệ
  • Máy phát điện
  • Nhiều ánh sáng
  • Không giờ giới nghiêm
  • Mua hàng tiện lợi
Liên hệ thuê căn hộ này
Thêm vào mục ưa thích

Các căn hộ cho thuê khác quanh đây

Các BDS vừa mới xem

BDS tương tự

back to top