351249Hãy ngưng tìm kiếm và thuê ngay căn hộ này
Bạn đang tìm kiếm một căn hộ giống như mới, lớn hơn, phong cách và tiện lợi trong cuộc sống tại Vinhomes Central Park nổi tiếng? Và bạn cần những tiện ích 5 sao như gym, hồ bơi ... và công viên cây xanh tuyệt vời cạnh sông Sài Gòn? Vì vậy, ngừng lãng phí thời gian của bạn. Căn hộ này là những gì bạn đã tìm kiếm. Liên hệ với chúng tôi để biết thêm thông tin.
Giá thuê1200USD
Tiền cọc × 2
Bao gồm
- VAT
- Phí quản lý
- Phí Internet
- Phí điện
- Phí nước
- Phí dọn vệ sinh
- Phí vào hồ bơi
- Phí vào phòng tập
- Phí giặt
Thành phố
Hồ Chí Minh
Khu Vực
Bình Thạnh
Hình thức
Căn hộ
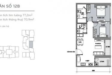
Diện tích
70m²
Phòng ngủ
2 phòng
Phòng tắm
2 phòng tắm
Thời gian tới quận 1
Khoảng 5 phút
Vật dụng
Đầy đủ
Tổng số căn
11000
Tên căn hộ
Danh mục
--
Cơ sở vật chất
- Hồ bơi
- Hồ bơi riêng
- Hồ bơi chung
- Phòng tập thể dục
- Bếp
- Bồn tắm
- Máy giặt
- Ban công
- Thang máy
- Compound
- Pet OK
Môi trường xung quanh
- Bàn tiếp tân
- Bảo vệ
- Máy phát điện
- Nhiều ánh sáng
- Không giờ giới nghiêm
- Mua hàng tiện lợi
Các căn hộ cho thuê khác quanh đây
3 phòng
1800 USD
128m²
Giấy dán tường in những bông hoa tuyệt đẹp trải dài các phòng căn hộ Vinhomes
2 phòng
1200 USD
80m²
Nhiều tiện nghi hữu ích dành cho cư dân tại một khu chung cư ở quận Bình Thạnh
Các BDS vừa mới xem
BDS tương tự