35703Vinhomes Central Park ngay tầm tay bạn
Tọa lạc ngay trung tâm thành phố, với chỉ 5 phút đi bộ bạn đã có thể hòa mình vào khu phố người Nhật ngay đường Lê Thánh Tôn với đa dạng các loại hình ăn uống và giải trí. Căn hộ thanh lịch và màu sắc trang nhã đem lại cho bạn cảm giác nhẹ nhàng, thoải mái mà bạn đang tìm kiếm.
VIETNAM HOUSE - Chuyên cho thuê căn hộ, căn hộ dịch vụ, nhà phố, villa và văn phòng tại Tp.HCM -
Giá thuê1250USD
Tiền cọc × 3
Bao gồm
- VAT
- Phí quản lý
- Phí Internet
- Phí điện
- Phí nước
- Phí dọn vệ sinh
- Phí vào hồ bơi
- Phí vào phòng tập
- Phí giặt
Thành phố
Hồ Chí Minh
Khu Vực
Bình Thạnh
Hình thức
Căn hộ
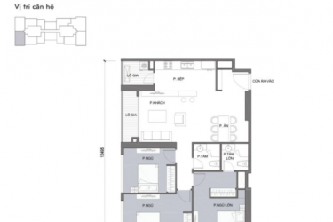
Diện tích
100m²
Phòng ngủ
3 phòng
Phòng tắm
2 phòng tắm
Thời gian tới quận 1
Khoảng 5 phút
Vật dụng
Đầy đủ
Tổng số căn
11000
Tên căn hộ
Danh mục
--
Cơ sở vật chất
- Hồ bơi
- Hồ bơi riêng
- Hồ bơi chung
- Phòng tập thể dục
- Bếp
- Bồn tắm
- Máy giặt
- Ban công
- Thang máy
- Compound
- Pet OK
Môi trường xung quanh
- Bàn tiếp tân
- Bảo vệ
- Máy phát điện
- Nhiều ánh sáng
- Không giờ giới nghiêm
- Mua hàng tiện lợi
Các căn hộ cho thuê khác quanh đây
3 phòng
1800 USD
128m²
Giấy dán tường in những bông hoa tuyệt đẹp trải dài các phòng căn hộ Vinhomes
2 phòng
1200 USD
80m²
Nhiều tiện nghi hữu ích dành cho cư dân tại một khu chung cư ở quận Bình Thạnh
Các BDS vừa mới xem
BDS tương tự