35539Nội thất hiếm có tại Vinhomes Central Park
Đối với những người cần một căn hộ cho cuộc sống của họ, căn hộ Vinhomes này là sự lựa chọn tốt nhất của bạn nhờ vị trí thuận tiện và nội thất tuyệt đẹp mà nó mang lại. Các cặp vợ chồng hoặc gia đình nhỏ là ứng cử viên tốt nhất cho căn hộ 2 phòng ngủ này. Liên hệ với chúng tôi để biết thêm thông tin về việc này.
VIETNAM HOUSE - Chuyên cho thuê căn hộ, căn hộ dịch vụ, nhà phố, villa và văn phòng tại Tp.HCM -
Giá thuê1050USD
Tiền cọc × 2
Bao gồm
- VAT
- Phí quản lý
- Phí Internet
- Phí điện
- Phí nước
- Phí dọn vệ sinh
- Phí vào hồ bơi
- Phí vào phòng tập
- Phí giặt
Thành phố
Hồ Chí Minh
Khu Vực
Bình Thạnh
Hình thức
Căn hộ
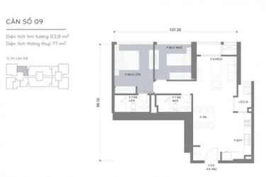
Diện tích
83m²
Phòng ngủ
2 phòng
Phòng tắm
2 phòng tắm
Thời gian tới quận 1
Khoảng 5 phút
Vật dụng
Đầy đủ
Tổng số căn
11000
Tên căn hộ
Danh mục
--
Cơ sở vật chất
- Hồ bơi
- Hồ bơi riêng
- Hồ bơi chung
- Phòng tập thể dục
- Bếp
- Bồn tắm
- Máy giặt
- Ban công
- Thang máy
- Compound
- Pet OK
Môi trường xung quanh
- Bàn tiếp tân
- Bảo vệ
- Máy phát điện
- Nhiều ánh sáng
- Không giờ giới nghiêm
- Mua hàng tiện lợi
Các căn hộ cho thuê khác quanh đây
3 phòng
1800 USD
128m²
Giấy dán tường in những bông hoa tuyệt đẹp trải dài các phòng căn hộ Vinhomes
2 phòng
1200 USD
80m²
Nhiều tiện nghi hữu ích dành cho cư dân tại một khu chung cư ở quận Bình Thạnh
Các BDS vừa mới xem
BDS tương tự