32619Gateway với căn hộ được trang bị bồn tắm nằm

Tài sản có hai phòng ngủ lớn với phòng tắm riêng trong phòng chính, và tủ quần áo có sẵn ở cả 2 phòng ngủ và hệ thống điều hòa không khí khắp căn hộ. Phòng tắm chính có cả vòi sen và bồn tắm để đáp ứng nhu cầu của một gia đình. Khu vực nhà bếp lớn có nhiều chỗ để đồ với những chiếc tủ thêm không gian chứa đồ. Liên hệ với chúng tôi để biết thêm thông tin.

 

 

 

VIETNAM HOUSE - Chuyên cho thuê căn hộ, căn hộ dịch vụ, nhà phố, villa và văn phòng tại Tp.HCM -

 

Liên hệ thuê căn hộ này
Thêm vào mục ưa thích
Giá thuê1400USD
Tiền cọc   × 2

Bao gồm

  • VAT
  • Phí quản lý
  • Phí Internet
  • Phí điện
  • Phí nước
  • Phí dọn vệ sinh
  • Phí vào hồ bơi
  • Phí vào phòng tập
  • Phí giặt
Thành phố
Hồ Chí Minh
Khu Vực
Quận 2
Hình thức
Căn hộ
Diện tích
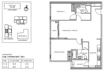
94m²
Phòng ngủ
2 phòng
Phòng tắm
2 phòng tắm
Thời gian tới quận 1
Khoảng 15 phút
Vật dụng
Đầy đủ
Tổng số căn
439
Tên căn hộ
Danh mục
--

Cơ sở vật chất

  • Hồ bơi
  • Hồ bơi riêng
  • Hồ bơi chung
  • Phòng tập thể dục
  • Bếp
  • Bồn tắm
  • Máy giặt
  • Ban công
  • Thang máy
  • Compound
  • Pet OK

Môi trường xung quanh

  • Bàn tiếp tân
  • Bảo vệ
  • Máy phát điện
  • Nhiều ánh sáng
  • Không giờ giới nghiêm
  • Mua hàng tiện lợi
Liên hệ thuê căn hộ này
Thêm vào mục ưa thích

Các căn hộ cho thuê khác quanh đây

Các BDS vừa mới xem

BDS tương tự

back to top