32621Những đặc điểm đặc biệt của căn hộ Gateway Thảo Điền

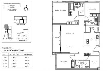
Căn hộ xinh đẹp này là một nơi đặc biệt ở một vị trí tuyệt vời với các cửa hàng tiện lợi gần đó và chỉ vài phút đi lại đến trung tâm mua sắm Vincom Mega Mall, phương tiện giao thông công cộng và tất cả các tiện nghi khác. Với 4 phòng ngủ, 3 phòng tắm với bồn tắm bên trong, điều duy nhất bạn có thể làm là liên hệ với chúng tôi để biết thêm thông tin.

 

 

 

VIETNAM HOUSE - Chuyên cho thuê căn hộ, căn hộ dịch vụ, nhà phố, villa và văn phòng tại Tp.HCM -

 

Liên hệ thuê căn hộ này
Thêm vào mục ưa thích
Giá thuê2600USD
Tiền cọc   × 2

Bao gồm

  • VAT
  • Phí quản lý
  • Phí Internet
  • Phí điện
  • Phí nước
  • Phí dọn vệ sinh
  • Phí vào hồ bơi
  • Phí vào phòng tập
  • Phí giặt
Thành phố
Hồ Chí Minh
Khu Vực
Quận 2
Hình thức
Căn hộ
Diện tích
134m²
Phòng ngủ
4 phòng
Phòng tắm
3 phòng tắm
Thời gian tới quận 1
Khoảng 15 phút
Vật dụng
Đầy đủ
Tổng số căn
439
Tên căn hộ
Danh mục
--

Cơ sở vật chất

  • Hồ bơi
  • Hồ bơi riêng
  • Hồ bơi chung
  • Phòng tập thể dục
  • Bếp
  • Bồn tắm
  • Máy giặt
  • Ban công
  • Thang máy
  • Compound
  • Pet OK

Môi trường xung quanh

  • Bàn tiếp tân
  • Bảo vệ
  • Máy phát điện
  • Nhiều ánh sáng
  • Không giờ giới nghiêm
  • Mua hàng tiện lợi
Liên hệ thuê căn hộ này
Thêm vào mục ưa thích

Các căn hộ cho thuê khác quanh đây

Các BDS vừa mới xem

BDS tương tự

back to top